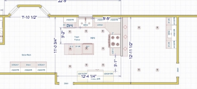
Ravere Kitchen Finish Pataskala Dublin Hilliard Galena Miscellaneous Sunbury Mt Vernon Upper Arlington Westerville Great design for those of you who like stainless steel and marble. This project was done for a client in Columbus OH. Let us know if you need your kitchen remodeled.